Description
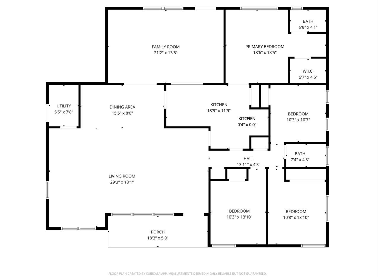
This rare 4-bedroom, 2-bath home offers one of the larger floorplans in Cabana Colony and is ready for its next chapter. The interior features granite kitchen countertops and a built-in bar area, with plenty of potential for personalization. While some cosmetic updates such as flooring would enhance the home, major improvements are already complete, including a 2021 roof, 2018 impact windows, and a new sewer line in 2021. Ideally located near shopping, dining, beaches, and convenient access to both I-95 and the Florida Turnpike. Property to be sold ''AS IS'' with right to inspect. No HOA! Showings begin March 9th by appointment.
-
4BEDS
-
< 1/4 AcreACRES
-
2BATHS
-
01/2 BATHS
-
2,006SQFT
-
$237$/SQFT
School Information
Description
This rare 4-bedroom, 2-bath home offers one of the larger floorplans in Cabana Colony and is ready for its next chapter. The interior features granite kitchen countertops and a built-in bar area, with plenty of potential for personalization. While some cosmetic updates such as flooring would enhance the home, major improvements are already complete, including a 2021 roof, 2018 impact windows, and a new sewer line in 2021. Ideally located near shopping, dining, beaches, and convenient access to both I-95 and the Florida Turnpike. Property to be sold ''AS IS'' with right to inspect. No HOA! Showings begin March 9th by appointment.
All listings featuring the BMLS logo are provided by BeachesMLS Inc. Copyright ©2026 BeachesMLS, Inc. IDX information is provided exclusively for consumers' personal, non-commercial use and it may not be used for any purpose other than to identify prospective properties consumers may be interested in purchasing. This information is not verified for authenticity or accuracy and is not guaranteed. Data last updated 2026-03-06T08:45:53.513.
